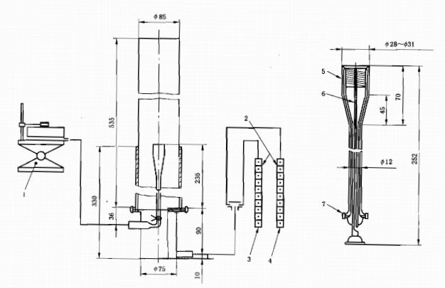
前言中华人民共和国国家标准 本标准与ISO 14520-1:2000《气体灭火系统物理性能和系统设计第1部分:一般要求》的一致性程度为非等效,其中本标准的附录A按照ISO 14520-1:2000附录B的内容制定,附录B按照ISO 14520-1:2000附录D的内容制定。气体灭火剂灭火性能测试方法 Test method for extinguishing property of gaseous extinguishing agent (ISO 14520-1:2000,Gaseous fire-extinguishing systems-Physical properties and system design-Part1:General requirements,NEQ) GB/T 20702-2006 发布部门:中华人民共和国国家质量监督检验检疫总局 中国国家标准化管理委员会 发布时间:2006年12月26日 实施时间:2007年05月01日 本标准的附录A、附录B都是规范性附录。 本标准由中华人民共和国公安部提出。 本标准由全国消防标准化技术委员会第三分技术委员会(SAC/TC 113/SC 3)归口。 本标准起草单位:公安部天津消防研究所。 本标准主要起草人:李铭、王万刚、庄爽、陈忠信。 1 范围本标准规定了使用杯式燃烧器确定气体灭火剂灭可燃气体和可燃液体火时,灭火剂在空气中灭火浓度的试验方法和在三元体系中(燃料、灭火剂、空气)基于燃烧性曲线数据,测定灭火剂的惰化浓度的试验方法。本标准适用于气体灭火剂灭火浓度和惰化浓度的测试。 2 规范性引用文件下列文件中的条款通过本标准的引用而成为本标准的条款。凡是注日期的引用文件,其随后所有的修改单(不包括勘误的内容)或修订版均不适用于本标准,然而,鼓励根据本标准达成协议的各方研究是否可使用这些文件的最新版本。凡是不注日期的引用文件,其最新版本适用于本标准。GB/T 5907 消防基本术语 第一部分 3 术语与定义GB/T 5907确立的以及下列术语和定义适用于本标准。3.1 灭火浓度 extinguishing concentration 不考虑任何安全系数,在确定的实验条件下扑灭特定燃料火所需要的灭火剂最低浓度。 3.2 惰化浓度 inerting concentration 使某一种可燃气体和空气的混合物在任何比例下都不能燃烧所需气体灭火剂的最低体积百分浓度。 4 测定方法4.1 气体灭火剂灭火浓度的测试方法气体灭火剂灭火浓度的测试采用杯式燃烧器法,见附录A。 4.2 气体灭火剂惰化浓度的测试方法 气体灭火剂惰化浓度的测试方法见附录B。 附录A(规范性附录)杯式燃烧器法测定气体灭火剂的灭火浓度A.1 试验原理A.2 试验设备 A.3 材料 A.4 采用可燃液体为燃料测定气体灭火剂灭火浓度的试验步骤 A.5 采用可燃气体为燃料测定气体灭火剂灭火浓度的试验步骤 A.6 气体灭火剂灭火浓度的计算方法 A.7 试验报告 A.1 试验原理本附录提出了使用杯式燃烧器确定气体灭火剂灭可燃气体和可燃液体火时,灭火剂在空气中灭火浓度的试验方法。在同轴流动的空气流中心位置处,圆形杯中燃料燃烧扩散的火焰被在这一空气中加入的气体灭火剂扑灭。 A.2 试验设备A.2.1 概要杯式燃烧器测量装置的布局和结构如图A.1所示。所标注的尺寸,除另有说明外,所有尺寸的误差均为±5%。 图A.1 杯式燃烧器 单位为毫米
a)燃烧杯和测试燃料容器 b)加热杯详图 1——液面调节架; 5——内壁与外壁间电加热丝; 2——转子流量计 6——热电偶管; 3——空气; 7——加热器接头。 4——灭火剂; A.2.2 杯 杯应是圆形的,由玻璃、石英或钢制成;外径范围是28mm~31mm,壁厚1mm~2mm;杯顶部边缘倒角45°。如图A.1所示,杯内顶部中央以下2mm~5mm处应有测温装置,可测量杯内此处燃料的温度;有加热燃料的装置,可对杯中的燃料加热。杯的实际形状与图中所示相似。用于气体燃料的杯子应在其顶部装有可获得均匀气流的装置(如:杯子可以用耐火材料填充)。 A.2.3 烟筒 烟筒是圆形的,用玻璃或石英制成,内径(85±2)mm,壁厚2mm~5mm,高度(535±5)mm。 A.2.4 扩散器 扩散器在烟筒底部,可以导入空气和灭火剂的预混流,以便在烟筒截面上均匀分布空气和灭火剂流量。扩散器内空气和灭火剂温度应为(25±10)℃,使用校准的感温器测量。 A.2.5 燃料供应 供应液态燃料应是可调节的,以保证输送到杯内的液体燃枓维持在固定的液位,供应气体燃料应可以控制,要以固定的流量输送到杯中。 A.2.6 集气管 空气和灭火剂在集气管中汇集成为单一的混合流输送入扩散器。 A.2.7 空气供应 将空气送入集气管,空气流速可以调节,应使用已校准的装置测量空气流量。 A.2.8 灭火剂供应 将灭火剂送入集气管,灭火剂的流速可以调节,如果按A.6.2方法确定灭火剂浓度,应该用已校准的装置测量灭火剂流量。 A.2.9 输送装置 输送装置应以气体形式向杯式燃烧器输送有代表性的、可测量的灭火剂样品。 A.3 材料A.3.1 空气空气应清洁、干燥、无油,其中氧的体积百分比浓度为(20.9±0.5)%。应记录所用空气的来源和氧的含量。 注:商用高压容器供应的空气其氧含量与20.9%有差别。 A.3.2 燃料 所用燃料的类型和质量应是合格产品。 A.3.3 灭火剂 灭火剂的类型应是经确认的合格产品,并应与提供者的说明书相符合。多组分灭火剂应预混后提供。液体灭火剂应以纯净灭火剂提供,不要用氮气加压。 A.4 采用可燃液体为燃料测定气体灭火剂灭火浓度的试验步骤A.4.1 将可燃液体放入燃料供应罐中。A.4.2 将燃料导入杯中,调节液面水平与杯顶部距离在5mm~10mm内。 A.4.3 运行杯的加热装置,使燃料达到(25±3)℃或者开口杯式闪点以上(5±3)℃,选择较高者。在此过程中,应调整杯中燃料液位,使其在燃料测温装置的上方。 注:给出的燃料温度是试验开始时的温度。 A.4.4 调节空气的流量为10L/min。 4.4.5 点燃燃料。 A.4.6 通入灭火剂之前,燃料应预燃60s~120s。在此期间将杯中燃料的液位调至距杯顶1mm之内。 A.4.7 开始通入灭火剂。逐渐增加灭火剂的流量,直至火焰熄灭。在火焰熄灭的时候记录灭火剂和空气的流量。增加灭火剂流速会导致灭火剂的浓度增加,这一增加不要超过先前浓度值的2%。在灭火剂流量调整后,应等一段时间(10s),使得在集气管中新比例的灭火剂和空气能到达杯的位置。在此过程中,液位保持在距杯的顶部1mm内。 注:开始试验时,大量增加流速以获得所需的灭火剂流量,随后的试验中在接近临界流量时,开始少量增加流量直至火焰熄灭为止。 A.4.8 按照A.6的规定确定灭火剂的灭火浓度。 A.4.9 下步试验前,应清除杯中的燃料和所有附着在杯上的残余物以及燃烧的烟黑。 A.4.10 在空气的流量分别为20L/min、30L/min、40L/min、50L/min条件下,重复A.4.1至A.4.9试验步骤。 A.4.11 绘制由A.4.8确定的灭火浓度/空气流量曲线图,确定该曲线图上的稳定区(即灭火浓度最大且不受空气流量影响的空气流量范围)。如果图上没有稳定区,应按A.4.10对大于50L/min的空气流量进行进一步测量。 A.4.12 将可燃液体放入燃料供应罐中。 A.4.13 将燃料导入杯中,调节液面与杯顶部距离在5mm~10mm内。 A.4.14 运行杯的加热装置,使燃料达到(25±3)℃或者开口杯式闪点以上(5±3)℃,选择较高者。在此过程中,调整杯中燃料液位。使得燃料液位在燃料测温装置的上方。 注:给出的燃料温度是试验开始时的温度。 A.4.15 调节空气的流量达到按A.4.11确定的稳定区域上的流量。 A.4.16 点燃燃料。 A.4.17 通入灭火剂之前,燃料应预燃60s~120s。在此期间将杯中燃料的液位调至距杯顶1mm之内。 A.4.18 开始通入灭火剂。逐渐增加灭火剂的流速,直至火焰熄灭。在火焰熄灭的时候记录灭火剂和空气的流量。增加灭火剂流速会导致灭火剂的浓度增加,这一增加不要超过前面值的2%。在灭火剂流量调整后,应等一段时间(10s),使得在集气管中新比例的灭火剂和空气能到达杯的位置。在此过程中,液位保持在距杯的顶部1mm内。 注:开始试验时,大量增加流速以获得所需的灭火剂流量时,随后的试验中在接近临界流量时,开始少量增加流量直至火焰熄灭为止。 A.4.19 下步试验前,应清除杯中的燃料和所有附着在杯上的残余物以及燃烧的烟黑。 A.4.20 重复四次A.4.12至A.4.19试验步骤。 A.4.21 根据5次试验平均值并按A.6的规定计算在未加热燃料的条件下灭火剂的灭火浓度。 A.4.22 重复A.4.12至A.4.20的试验步骤,使燃料温度保持在低于其沸点5℃,或者200℃,选择较低者。在整个试验过程中燃枓温度应保持在此限定范围内。 A.4.23 根据A.6的规定及5次试验平均疽,确定在加热燃料的条件下气体灭火剂的灭火浓度。 A.5 采用可燃气体为燃料测定气体灭火剂灭火浓度的试验步骤A.5.1 用于气体燃料的杯应能在杯顶部获得均匀的气流。例如,将用于液体燃料的杯用耐火材料和沙填充就可以。A.5.2 气体燃料要通过压力调节装置来供应,该装置可以调节和测量气体的流量。该装置需要校准。 A.5.3 调节空气的流量为40L/min。 A.5.4 将气体燃料通入杯中。 A.5.5 点燃燃料,调节燃料流量,使火焰达到8cm的高度。 A.5.6 通入灭火剂前,使燃料预燃60s。 A.5.7 开始通入灭火剂,逐渐增加灭火剂的流量,直至火焰熄灭。在火焰熄灭的时候记录灭火剂、空气和燃料的流量。增加灭火剂流量会导致灭火剂的浓度增加。这一增加不要超过先前浓度值的3%。在灭火剂流量调整后,应等一段时间(10s),使得在集气管中新比例的灭火剂和空气能到达杯的位置。 注:开始试验时,大量增加流速以获得所需的灭火剂流量,随后的试验中在接近临界流量时,开始少量增加流量直至火焰熄灭为止。 A.5.8 火焰熄灭后停止可燃气体供应。 A.5.9 下步试验前,应清除杯中所有附着在杯上的残余物以及燃烧的烟黑。 A.5.10 按照A.6的规定确定灭火剂灭火浓度。 A.5.11 在火焰高度分别为4cm、6cm、10cm和12cm的条件下,重复A.5.3至A.5.9的试验步骤。 A.5.12 确定灭火浓度最大时燃料的火焰高度。 A.5.13 调节空气的流量为40L/min。 A.5.14 将气体燃料通入杯中。 A.5.15 点燃燃料。调节燃料流量,使火焰达到上述需要灭火剂浓度最大时的高度。 A.5.16 在开始通入灭火剂前,让燃料燃烧60s。 A.5.17 开始通入灭火剂,逐渐增加灭火剂的流量,直至火焰熄灭。在火焰熄灭的时候记录灭火剂、空气和燃料的流量,增加灭火剂流量会导致灭火剂的浓度增加,这一增加不要超过先前浓度值的3%。在灭火剂流量调整后,应等一段时间(10s),使得在集气管中新比例的灭火剂和空气能到达杯的位置。 注:开始试验时,大量增加流速以获得所需的灭火剂流量。随后的试验中在接近临界流量时,开始少量增加流量直至火焰熄灭为止。 A.5.18 火焰熄灭后,停止可燃气体供应。 A.5.19 下步试验前,应清除杯中所有附着在杯上的残余物以及燃烧的烟黑。 A.5.20 按照A.6的规定确定灭火剂的灭火浓度。 A.5.21 重复四次A.5.13至A.5.20试验步骤。 A.5.22 按照A.6的规定及5次试验的平均值确定燃料未加热情况下气体灭火剂的灭火浓度。 A.6 气体灭火剂灭火浓度的计算方法A.6.1 推荐方法该方法确定灭火剂与空气混合物中灭火剂蒸气浓度,这个浓度恰好熄灭火焰。所使用的气体分析仪器在测量空气灭火剂混合物的浓度范围内是标定了的。这种装置具有连续采样的功能(如,在线气体分析仪),也可是其他类型不连续采样的分析仪器(如气相色谱)。推荐使用连续测量技术。 可用连续氧分析仪测量烟筒里杯下方空气/灭火剂混合物中氧的存留浓度。氧浓度数值受灭火剂浓度的影响。灭火剂浓度可按下式计算:
C——灭火剂浓度,体积百分数%; O2——烟筒里空气/灭火剂混合物中氧浓度,体积百分数%; O2(sup)——空气源中的氧浓度,体积百分数%。 A.6.2 替代方法 在灭火剂/空气混合物中的灭火剂浓度可以通过测量灭火剂和空气的流量计算得到。如果使用质量流速仪,测得的质量流速可通过下面的公式转换成体积流速。
Vt——气体i的体积流量,单位为升每分钟(L/min); mt——气体i的质量流量,单位为克每分钟(g/min); ρt——气体i的密度,单位为克每升(g/L)。 应注意实际的蒸气密度。在环境温度和压力下许多卤代烃的蒸气密度与按理想气体定律计算所得到的值相差几个百分点。 例如:HFC-227ea在295K,101.3kPa时蒸气密度比按理想气体计算约高出2.4%;在6.7kPa(6.6%)时实际密度值比按理想气体计算值小0.2%。 在可能的情况下可以使用公布的数值,无公布数值时可以采用估算技术。在试验报告中应记录物理特征值的来源。 灭火剂体积百分比浓度C可按如下计算:
C——灭火剂的体积百分比浓度,%; Vair——空气的体积流量,单位为升每分钟(L/min); Vext——灭火剂的体积流量,单位为升每分钟(L/min)。 A.7 试验报告在试验报告中至少应包括下列内容:a)设备示意图,所用材料的种类、尺寸; b)灭火剂、燃料、空气的来源和成分; c)对于每次试验,试验开始时的燃料温度,灭火时的燃料温度及灭火时空气/灭火剂混合物的温度; d)灭火时,灭火剂、气体燃料和空气的流量;如果使用A.6.1的方法,用灭火剂的浓度或氧浓度代替灭火剂的流量; e)确定灭火浓度的方法; f)每次试验灭火剂的灭火浓度; g)不加热燃料和加热燃料(加热到低于其沸点5℃,或者200℃,选择较低者)时的灭火浓度; h)测量误差分析; i)按A.4.9至A.4.11, A.5.10至A.5.12试验步骤画出灭火浓度/空气流量图,确定灭火剂的灭火浓度。 附录B(规范性附录)气体灭火剂惰化浓度测定方法B.1 试验原理B.2 设备 B.3 试验步骤 B.4 试验结果 B.1 试验原理本附录规定了在三元体系中(燃料、灭火剂、空气)基于燃烧性曲线数据,测定气体灭火剂的惰化浓度(或称抑爆浓度)的试验方法。在1个大气压(1bar或14.7psia)下,用火花隙点燃燃料/灭火剂/空气混合物,测量压力的升高。 B.2 设备B.2.1 试验容器球形,容积为(7.9±0.25)L,配有入口和出口,热电偶和压力传感器。如图B.1。 B.2.2 点火器 由四根石墨棒(“H”铅笔铅芯)组成,用两根电线系在其端处,两线间距离大约3mm,通常电阻为1Ω。 B.2.3 电容器 两个525μF、450V的电容器串联,用导线与点火器连接。 B.2.4 内部混合风扇 能够承受爆炸时的温度和压力。 B.3 试验步骤B.3.1 球和组件应处于通常的室温下(22±3)℃。应记录超出此范围有差别的温度。B.3.2 将压力传感器与适宜的记录仪连接,以测量试验容器内的压力升。此压力传感器的精度为70Pa。 B.3.3 将试验容器抽真空。 B.3.4 输入灭火剂,用分压的方法使其达到要求的浓度,如果是液体应有足够的时间等待其蒸发。 B.3.5 加入燃料蒸气和空气[相对湿度为(50±5)%],用分压的方法使其达到要求的浓度,直至容器内达到1个大气压(1bar或14.7psia)。 B.3.6 开启风扇,混合1mim;关闭风扇,等待1min,使混合物达到静止状态。 B.3.7 给电容器充电至720V~ 740V(DC)的电压,可产生68J~70J的贮存能量。 B.3.8 合上开关,电容器放电。 注:电容器放电电流引起石墨棒表面的电离,击穿间隙,引起电晕放电。 B.3.9 如果有压力升,测量出数值并做记录。 B.3.10 用蒸馏水和布淸洗试验容器内部,以避免分解残余物的沉积。 B.3.11 保持燃料/空气的比例,改变灭火剂的数量重复试验,直至找到压力较最初压力升高了0.07倍的条件。 注:确定可燃边界即找到这样的组成:恰好能产生0.07倍的压力升;或者在最初压力为1个大气压(1bar或14.7psia)时,压力升为1psi。 B.3.12 重复试验,改变燃料/空气的比例和灭火剂的浓度,测试惰化该混合物最高灭火剂蒸气浓度。 B.4 试验结果B.3.12测试的浓度即为气体灭火剂的惰化浓度图B.1 惰化设备
1——取样口; 2——气体入口; 3——7.9L实验容器; 4——点火器; 5——通风口; 6——真空表; 7——压力表; 8——测试罐。 |
1. 本站所有资源来源于用户上传和网络,仅作为演示数据,如有侵权请邮件联系站长!
2. 盗版,破解有损他人权益和违法作为,请各位站长支持正版!
2. 盗版,破解有损他人权益和违法作为,请各位站长支持正版!

国家标准(推荐)