建筑制图标准 GB/T50104-2010

master
2024-02-11
国家标准
标准型式: 中华人民共和国国家标准-强制标准
发布日期: 2010-08-18
实施日期: 2011-03-01

前言

中华人民共和国国家标准

建筑制图标准

Standard for architectural drawings

GB/T 50104-2010

主编部门: 中华人民共和国住房和城乡建设部
批准部门:中华人民共和国住房和城乡建设部
施行日期: 2 0 1 1 年 3 月 1 日

中华人民共和国住房和城乡建设部公告
第747号

关于发布国家标准《建筑制图标准》的公告

现批准《建筑制图标准》为国家标准,编号为GB/T 50104-2010,自2011年3月1日起实施。原《建筑制图标准》GB/T 50104-2000 同时废止。

本标准由我部标准定额研究组织中国计划出版社出版发行。

中华人民共和国住房和城乡建设部

二O—O年八月十八日

本标准是根据原建没部《关于印发<2007年工程建设标准规范制定、修定计划(第一批)>的通知》(建标[2007]125号)的要求,由中国建筑标准设计研究院会同有关单位,在《建筑制图标准》GB/T 50104-2001的基础上修订而成的。
本标准在修订过程中,标准编制组经广泛调查研究,认真总结实践经验,参考有关国际标准和国外先进标准,并广泛征求意见,最后经审查定稿。
本标准共分4章,主要技术内容包括:总则、一般规定、图例、图样画法。
本标准修订的主要内容是:
1.调整了线宽组合;
2.增加了需要索引的符号图样;
3.增加或修改了图例。
本标准由住房和城乡建设部负责管理,由中国建筑标准研究院负责具体技术内容的解释。执行过程中如有意见和建议请寄送中国建筑标准设计研究院(地址:北京市海淀区首体南路9号主语国际2号楼,邮政编码:100048),以便修订时参考。
本标准主编单位、参编单位、主要起草人和主要审查人:
主编单位:中国建筑标准设计研究院
参编单位:中国建筑设计研究院 中国航空规划建设发展有限公司 华东建筑设计研究院有限公司 北京理正软件设计研究院有限公司 北京天正工程软件有限公司
主要起草人员:顾均 林琳 韩光宗 熊涛 沈朝晖 饶良修 张晔 范一飞 吴正 杨国平 林卫平
主要审查人员:何玉如 费麟 徐宇宾 白红卫 石定稷 苗茁 刘杰 王鹏 董静茹 寇九贵 胡纯炀 张同亿

条文说明
《建筑制图标准)GB/T 50104-2010,经住房和城乡建设部2010年8月18日以第747号公告批准发布。
本标准是在《建筑制图标准》GB/T 50104-2001的基础上修订而成,上一版的主编单位是中国建筑标准设计研究院,参编单位是中国航空工业规划设计院,主要起草人员是顾均、曹声飞。
本标准修订的主要技术内容是:1.调整了线宽组合;2.增加了需要索引的符号图样;3.增加或修改了图例。
本标准修订过程中,编制组进行了深入调查研究,总结实践经验,认真分析了有关资料及数据,参考了有关国际标准。
为便于广大设计、施工、科研、学校等单位有关人员在使用本标准时能正确理解和执行条文规定,《建筑制图标准》编制组按章、节、条顺序编制了本标准的条文说明,对条文规定的目的、依据以及执行中需注意的有关事项进行了说明。但是,本条文说明不具备与标准正文同等的法律效力,仅供使用者作为理解和把握标准规定的参考。

1 总则

1.0.1 为了使建筑专业、室内设计专业制图规则,保证制图质量,提高制图效率,做到图面清晰、简明,符合设计、施工、存档的要求,适应工程建设的需要,制定本标准。
1.0.2 本标准适用于下列制图方式绘制的图样:1 手上制图;2 计算机制图。
1.0.3 本标准适用于建筑专业和室内设计专业的下列工程制图:
      1 新建、改建、扩建工程的各阶段设计图、竣工图;
      2 原有建筑物、构筑物等的实测图;
      3 通用设计图、标准设计图。
1.0.4 建筑专业、室内设计专业制图,除应符合本标准外,尚应符合国家现行有关标准的规定。

条文说明
1.0.1 本标准是在《建筑制图标准》GB/T 50104一2001(以下称原标准)基础上进行修编与补充,适用于建筑专业和室内设计专业。

2 一般规定

2.1 图线
2.2 比例

2.1 图线

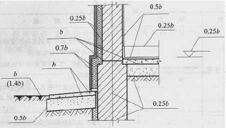
2.1.1 图线的宽度b,应根据据图样的复杂程度和比例,并按现行国家标准《房屋建筑制图统一标准》GB/T 50001的有关规定选用图(2.1.1-1)~图(2.1.1-3)。绘制较简单的图样时,可采用两种线宽的线宽组,其线宽比宜为b:0.25b。
2.1.2 建筑专业、室内设计专业制图采用的各种图线,应符合表2.1.2的规定。


10-160ZG43419214.png


图2.1.1-1  平面图图线宽度选用示例

 

10-160ZG43444D1.png


图2.1.1-2  墙身剖面图图线宽度选用示例


10-160ZG43515K0.png
               


图2.1.1-3  详图图线宽度选用示例

表2.1.2  图线


10-160ZG43H1137.png



续表2.1.2



10-160ZG43925501.png
 
10-160ZG4394K44.png


注:地平线宽可用1.4b。

2.2 比例

2.2.1 建筑专业、室内设计专业制图选用的各种比例,宜符合表2.2.1的规定。

表2.2.1  比例


10-160ZG44234444.png


3 图例

3.0.1 构造及配件图例应符合表3.0.1的规定。

表3.0.1  构造及配件图例


10-160ZG5004I13.png


续表3.0.1


10-160ZG5030L16.png
 
10-160ZG5033QI.png


续表3.0.1
 
10-160ZG5060Ba.png
 
10-160ZG50G2362.png
 
续表3.0.1
10-160ZG50T41b.png
10-160ZG50912161.png


续表3.0.1

10-160ZG5101L35.png


续表3.0.1

10-160ZG510345P.png


续表3.0.1

10-160ZG51142916.png
10-160ZG5120Ya.png


续表3.0.1

10-160ZG51334506.png
10-160ZG51351219.png


续表3.0.1

10-160ZG51512353.png
10-160ZG5152b05.png
10-160ZG51634238.png
10-160ZG51A5N4.png


续表3.0.1

10-160ZG51P5A3.png
10-160ZG51R2225.png


续表3.0.1

10-160ZG51934424.png
10-160ZG51949514.png


续表3.0.1

10-160ZG52104462.png
10-160ZG52120a1.png


续表3.0.1
 
10-160ZG52229560.png
 
10-160ZG52249536.png
 
续表3.0.1
 
10-160ZG52354611.png
 
10-160ZG54521C3.png
 
续表3.0.1

3.0.2 水平及垂直运输装置图例应符合表3.0.2的规定。

表3.0.2  水平及垂直运输装置图例


10-160ZG5514V13.png
 
10-160ZG552055G.png
 
续表3.0.2 
   7.png
9.png
续表3.0.2
   11.png
13.png
续表3.0.2

 
10-160ZG559302N.png

条文说明

3.0.1 增加或修改了构造及配件图例。
3.0.2 增加或修改了水平及垂直运输装置图例。

 

4 图样画法

4.1 平面图
4.2 立面图
4.3 剖面图
4.4 其他规定
4.5 尺寸标注

4.1 平面图

4.1.1 平面图的方向宜与总图方向一致。平面图的长边宜与横式幅面图纸的长边一致。
4.1.2 在同一张图纸上绘制多于一层的平面图时,各层平面图宜按层数由低向高的顺序从左至右或从下至上布置。
4.1.3 除顶棚平面图外,各种平面图应按正投影法绘制。
4.1.4 建筑物平面图应在建筑物的门窗洞口处水平剖切俯视,屋顶平面图应在屋面以上俯视, 图内应包括剖切面及投影方向可见的建筑构造以及必要的尺寸、标高等,表示高窗、洞口、通气孔、槽、地沟及超重机等不可见部分时,应采用虚线绘制。
4.1.5 建筑物平面图应注写房间的名称或编号。编号应注写在直径为6mm细实线绘制的圆圈内,并应在同张图纸上列出房间名称表。
4.1.6 平面较大的建筑物,可分区绘制平面图,但每张平面图均应绘制组合示意图。各区应分别用大写拉丁字母编号。在组合示意图中需提示的分区,应采用阴影线或填充的方式表示。4.1.7 顶棚平面图宜采用镜像投影法绘制。
4.1.8 室内立面图的内视符号(图4.1.8-1)应注明在平面图上的视点位置、方向及立面编号(图4.1.8-2,4.1.8-3)。符号中的圆圈应用细实线绘制,可根据图面比例圆圈直径选择8mm~12mm。立面编号宜用拉丁字母或阿拉伯数。


10-160ZG609524W.png
图4.1.8-1  内视符号
10-160ZG60922928.png
图4.1.8-2  平面图上内视符号应用示例


条文说明

4.1.8 根据室内设计在平面中标明所视立面的常用制图方式,在实际运用中,有时由于立面较多,为对照查找便利起见,通常立面编号还需加索引号。本标准增加了内视符号需要索引的图例,规定其画法和用法,并做示例。其他情况如:相邻90°的两个方向、三个方向,可用多个单面内视符号或一个四面内视符号表示,此时四面内视符号中的四个编号格内,设计人可在要表示的方向格内注写两个或三个编号,其余为空格即可。内饰符号也可用于表示建筑内庭院立面。

4.2 立面图

4.2.1 各种立面图应按正投影法绘制。
4.2.2.建筑立面图应包括投影方向可见的建筑外轮廓线和墙面线脚、构配件,墙面做法及必要的尺寸和标高等。
4.2.3 室内立面图应包括投影方向可见的室内轮廓线和装修构造、门窗、构配件,墙面做法、固定家具、灯具、必要的尺寸和标高及需要表达的非固定家具、灯具、装饰物件等。室内立面图的顶棚轮廓线,可根据具体情况只表达吊平顶或同时表达吊平顶及结构顶棚。
4.2.4 平面形状曲折的建筑物,可绘制展开立面图、展开室内立面图。圆形或多边形平面的建筑物,可分段展开绘制立面图,室内立面图。但均应在图名后加注“展开”二字。
4.2.5 较简单的对称式建筑物或对称的构配件等,在不影响构造处理和施工的情况下。立面图可绘制一半,并应在对称轴线处画对称符号。
4.2.6 在建筑物立面图上,相同的门窗、阳台、外檐装修、构造做法等可在局部重点表示,并应绘出其完整图形,其余部分可只画轮廓线。
4.2.7 在建筑物立面图上,外墙表面分格线应表示清楚,应用文字说明各部分所用面材及色彩。
4.2.8 有定位轴线的建筑物,宜根据两端定位轴线号编注立面图名称。无定位轴线的建筑物可按平面图各面的朝向确定名称。
4.2.9 建筑物室内立面图的名称,应根据平面图中内视符号的编号或字母确定。

条文说明

4.2.8 立面图根据平面中两端定位轴线号编注立面图名称如:①~⑩立面图、 10-160ZG63KC60.png 立面图。
4.2.9 室内立面图根据平面中内视符号的编号或字母确定名称如:①立面图, 10-160ZG63Q0931.png 立面图。

4.3 剖面图

4.3.1 剖面图的剖切部位,应根据图纸的用途或设计深度,在平面图上选择能反映全貌、构造特征以及有代表性的部位剖切。
4.3.2 各种剖面图应按正投影法绘制。
4.3.3 建筑剖面图内应包括剖切面和投影方向可见的建筑构造,构配件以及必要的尺寸、标高等。
4.3.4 剖切符号可用阿拉伯数字,罗马数字或拉丁字母编号(图4.3.4)。


10-160ZG6141c54.png
图4.3.4  剖切符号


4.3.5 画室内立面时,相应部位的墙体、楼地面的剖切面宜绘出。必要时,占空间较大的设备管线、灯具等的剖切面,亦应在图纸上绘出。

4.4 其他规定

4.4.1 指北针应绘在建筑物±0.000标高的平面图上,并应放在明显位置,所指的方向应与总图一致。
4.4.2 零配件详图与构造详图,宜按直接正投影法绘制。
4.4.3 零配件外形或局部构造的立体图,宜按现行国家标准《房屋建筑制图统一标准》GB/T 5001的有关规定绘制。
4.4.4 不同比例的平面图,剖面图,其抹灰层、楼地面,材料图例的省略画法,应符合下列规定:
      1 比例大于1:50的平面、剖面图,应画出抹灰层、保温隔热层等与楼地面、屋面的面层线,并宜画出材料图例;
      2 比例等于1:50的平面图,剖面图,剖面图宜画出楼地面、屋面的面层线,宜绘出保温隔热层,抹灰层的面层线应根据需要确定;
      3 比例小于1:50的平面图,剖面图,可不画出抹灰层,但剖面图宜画出楼地面、屋面的面层线;
      4 比例为1:100~1:200的平面图、剖面图,可画简化的材料图例,但剖面图宜画出楼地面、屋面的面层线;
      5 比例小于1:200的平面图、剖面图,可不画材料图例,剖面图的楼地面、屋面的面层线可不画出。
4.4.5 相邻的立面图或剖面图,宜绘制在同一水平线上,图内相互有关的尺寸及标高,宜标注在同一竖线上(图4.4.5).


10-160ZG61K9303.png
图4.4.5  相邻立面图、剖面图的位置关系


4.5 尺寸标注

4.5.1 尺寸可分为总尺寸、定位尺寸和细部尺寸。绘图时,应根据设计深度和图纸用途确定所需注写的尺寸。
4.5.2 建筑物平面、立面、剖面图,宜标注室内外地坪、楼地面、地下层地面、阳台、平台、檐口、屋脊、女儿墙、雨棚、门、窗、台阶等处的标高。平屋面等不易标明建筑标高的部位可标注结构标高,应进行说明。结构找坡的平屋面,屋面标高可标注在结构板面最低点,并注明找坡坡度。有屋架的屋面,应标注屋架下弦搁置点或柱顶标高。有起重机的厂房剖面图应标注轨顶标高、屋架下弦杆件下边缘或屋面梁底、板底标高。梁式悬挂起重机宜标出轨距尺寸,并应以米(m)计。
4.5.3 楼地面、地下层地面、阳台、平台、檐口、屋脊、女儿墙、台阶等处的高度尺寸及标高,宜按下列规定注写:
      1 平面图及其详图应注写完成面标高;
      2 立面图,剖面图及其详图应注写完成面标高及高度方向的尺寸;
      3 其余部分应注写毛面尺寸及标高:
      4 标注建筑平面图各部位的定位尺寸时,应注写与其最邻近的轴线间的尺寸;标注建筑剖面各部位的定位尺寸时,应注写其所在层次内的尺寸;
      5 设计图中连续重复的构配件等,当不易标明定位尺寸时,可在总尺寸的控制下,定位尺寸不用数值而用“均分”或“EQ”字样表示(图4.5.3)。


10-160ZG620332Y.png
图4.5.3  均分尺寸示例


条文说明

4.5.1 根据设计中对各种尺寸的应用,归纳为总尺寸、定位尺寸、细部尺寸三种,并定义:
总尺寸—建筑物外轮廓尺寸,若干定位尺寸之和。
定位尺寸—轴线尺寸;建筑物构配件如:墙体、门、窗、洞口洁具等,相应于轴线或其他构配件确定位置的尺寸。
细部尺寸—建筑物构配件的详细尺寸。
4.5.3 对本条第3款说明如下:
3 所谓毛面尺寸及标高是指非建筑完成面尺寸及标高,如平面图中标注的墙体厚度尺寸,板底、梁底标高。

本标准用词说明

1 为便于在执行本标准条文时区别对待,对要求严格程度不同的用词说明如下:
    1)表示很严格,非这样做不可的:
正面词采用“必须”,反面词采用“严禁”;
    2)表示严格,在正常情况下均应这样做的:
正面词采用“应”,反面词采用“不应”或“不得”;
    3)表示允许稍有选择,在条件许可时首先应这样做的:
正面词采用“宜”,反面词采用“不宜”,
    4)表示有选择,在一定条件下可以这样做的,采用“可”。
2 本标准中指明应按其他有关标准执行的写法为:“应符合……的规定”或应按……执行”。

引用标准名录

《技术制图—字体》GB/T 14691
《房屋建筑制图统一标准》GB/T 50001

1. 本站所有资源来源于用户上传和网络,仅作为演示数据,如有侵权请邮件联系站长!
2. 盗版,破解有损他人权益和违法作为,请各位站长支持正版!
回复

举报

 
高级模式
B Color Image Link Quote Code Smilies

本版积分规则

Archiver|手机版|小黑屋|安全法规网

Powered by Discuz! X3.5© 2001-2025 Discuz! Team.

快速回复 返回顶部 返回列表